资讯详情

把小空间做出层次,让空间更加通透和大气

2017-08-01 阅读:342 来源:景明设计
进入>

这是天津的一个项目,小区名字叫中交樾公馆,房子面积不大,100平米,客户夫妻二人居住,孩子不住这边。家具已经看好了样式,对风格没有绝对的主观想法。

这是天津的一个项目,小区名字叫中交樾公馆,房子面积不大,100平米,客户夫妻二人居住,孩子不住这边。家具已经看好了样式,对风格没有绝对的主观想法。

把小空间做出层次,让空间更加通透和大气

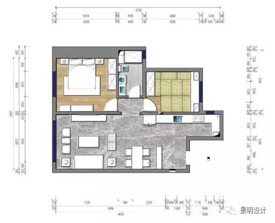
这是原始户型图,入户门厅狭小,空间尺度不够,无法满足日常使用。厨房狭小,不能支撑日常的操作使用。

把小空间做出层次,让空间更加通透和大气

把小空间做出层次,让空间更加通透和大气

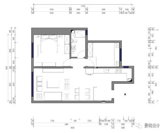
这是改建后的平面布局图,将原有厨房、门厅之间的那堵墙拆除,在门厅正对面设计玄关柜。①作为玄关使用,让房子有个独立的小门厅,增强入户的仪式感和室内空间的隐私。②作为鞋帽柜使用,满足平日鞋帽的更换。

将原有的厨房改成开放式厨房,增加厨房的通透感。加强厨房操作人员与外界人员的沟通,增加做饭的乐趣。扩大厨房空间的储藏功能。最左侧放置对开门的冰箱,让厨房、餐厅取物都便利。

还有就是餐厅的独立,让吃饭不将就。增加就餐的仪式感和浪漫性。其实平面布局上只是有一些想法而已,主要就是想让空间不局促,把小空间做出层次,让空间看起来通透和大气。接下来就是我们做的设计类的工作了。

我们通常会做一个白天光线的分析考虑白天是否要加入辅助照明。

还有晚上的灯光分布

这个是入户玄关的设计,采用上下柜的设计,柜子两面使用,保持一定的通透性,使两边空间显得不是很拥挤,玄关这面局部做鞋柜和衣帽柜。背面则是餐桌旁边的小酒柜。

餐厅的设计

餐桌背景墙是地板上墙和顶,在地板中间嵌入LED灯,像似地板中间长出了灯。

客厅的效果图电视背景墙是一个水墨的风景画,两边做的窗格子造型,寓意:窗外的风景。

主卧室的效果图

原来客户对床头上的那幅画感觉不好,说梅花谐音(没花)说让设计师给换一个画。设计师给他纠正了一下,这幅画叫喜上眉梢,代表吉祥喜庆的寓意。后来客户满怀欣喜。

把小空间做出层次,让空间更加通透和大气

开放式厨房的效果

把小空间做出层次,让空间更加通透和大气

一个次卧做成了榻榻米,增加了储物空间,也成为了男主人的活动会客小天地。

客户对方案的执行非常的严谨,除了灯具有些小的调整外,其它是要求复原设计效果的。在方案的执行中,难点在于电视背景墙和餐桌背景墙。厂家定制电视背景墙中间的那个花纹是一定要提供这幅画的作者的原图才能定制。餐桌背景墙的实木地板定制也是费了很大周折,通过朋友寻找地板工厂,反复的给厂家讲解定制尺寸和工艺要求。因为造型的衬底已经完成,所以地板的安装需要我在现场全程盯着,直到最后安装完成。

在做住宅设计的时候,设计师一般会跟客户分层次来讲。重要空间和其它空间的区别。重要空间一般是三个,也就是风水中讲到的阳宅三要:门、主、灶。这三个空间对家运影响比较大。门:我一般会映入门厅的设计思路。主:主人的卧室。灶:灶台,延伸出来就是厨房。

其实,我个人认为,只要把方案用心做了,设计表现做好一点,每个空间有一些设计师的想法。各个细节考虑到位,当然了,给客户出一些他解决不了的难题留着设计师来给他解决也很重要。这样,客户对设计师几乎就没有什么抵抗力了,全案设计也就是这样轻松的实现。

这是原始户型图,入户门厅狭小,空间尺度不够,无法满足日常使用。厨房狭小,不能支撑日常的操作使用。

把小空间做出层次,让空间更加通透和大气

把小空间做出层次,让空间更加通透和大气

这是改建后的平面布局图,将原有厨房、门厅之间的那堵墙拆除,在门厅正对面设计玄关柜。①作为玄关使用,让房子有个独立的小门厅,增强入户的仪式感和室内空间的隐私。②作为鞋帽柜使用,满足平日鞋帽的更换。

将原有的厨房改成开放式厨房,增加厨房的通透感。加强厨房操作人员与外界人员的沟通,增加做饭的乐趣。扩大厨房空间的储藏功能。最左侧放置对开门的冰箱,让厨房、餐厅取物都便利。

还有就是餐厅的独立,让吃饭不将就。增加就餐的仪式感和浪漫性。其实平面布局上只是有一些想法而已,主要就是想让空间不局促,把小空间做出层次,让空间看起来通透和大气。接下来就是我们做的设计类的工作了。

我们通常会做一个白天光线的分析考虑白天是否要加入辅助照明。

还有晚上的灯光分布

这个是入户玄关的设计,采用上下柜的设计,柜子两面使用,保持一定的通透性,使两边空间显得不是很拥挤,玄关这面局部做鞋柜和衣帽柜。背面则是餐桌旁边的小酒柜。

餐厅的设计

餐桌背景墙是地板上墙和顶,在地板中间嵌入LED灯,像似地板中间长出了灯。

客厅的效果图电视背景墙是一个水墨的风景画,两边做的窗格子造型,寓意:窗外的风景。

主卧室的效果图

原来客户对床头上的那幅画感觉不好,说梅花谐音(没花)说让设计师给换一个画。设计师给他纠正了一下,这幅画叫喜上眉梢,代表吉祥喜庆的寓意。后来客户满怀欣喜。

把小空间做出层次,让空间更加通透和大气

开放式厨房的效果

把小空间做出层次,让空间更加通透和大气

一个次卧做成了榻榻米,增加了储物空间,也成为了男主人的活动会客小天地。

客户对方案的执行非常的严谨,除了灯具有些小的调整外,其它是要求复原设计效果的。在方案的执行中,难点在于电视背景墙和餐桌背景墙。厂家定制电视背景墙中间的那个花纹是一定要提供这幅画的作者的原图才能定制。餐桌背景墙的实木地板定制也是费了很大周折,通过朋友寻找地板工厂,反复的给厂家讲解定制尺寸和工艺要求。因为造型的衬底已经完成,所以地板的安装需要我在现场全程盯着,直到最后安装完成。

在做住宅设计的时候,设计师一般会跟客户分层次来讲。重要空间和其它空间的区别。重要空间一般是三个,也就是风水中讲到的阳宅三要:门、主、灶。这三个空间对家运影响比较大。门:我一般会映入门厅的设计思路。主:主人的卧室。灶:灶台,延伸出来就是厨房。

其实,我个人认为,只要把方案用心做了,设计表现做好一点,每个空间有一些设计师的想法。各个细节考虑到位,当然了,给客户出一些他解决不了的难题留着设计师来给他解决也很重要。这样,客户对设计师几乎就没有什么抵抗力了,全案设计也就是这样轻松的实现。

加载全文

免责声明:本站部分内容、图片来自用户自主上传,如果您对本站信息资源版权的归属问题存有异议,请您致信,我们会立即做出答复并及时解决。如果您认为本站有侵犯您权益的行为,请通知我们,我们一定根据实际情况及时处理。

以上是景明设计为大家整理的有关把小空间做出层次,让空间更加通透和大气的全部内容,更多精彩请访问学习资讯新闻专栏。

相关课程

更多>
2020猎学网广告栏
申请课程免费试听名额

课程顾问24小时内联系您

你好

顾问将于24小时内联系您!

确定
在线咨询 微信咨询 立即报名
申请1对1课程顾问咨询服务
×
你好

顾问将于24小时内联系您!

确定
徐州猎学网 >景明设计 >把小空间做出层次,让空间更加通透和大气